欢迎进入广东冠耐斯给排水设备有限公司官方网站!
客户支持&服务
人才招聘
30年源头厂家直销
全国免费上门安装
网站首页
不锈钢水箱
不锈钢水箱
方型不锈钢水箱工程
不锈钢水箱工程
消防水箱工程
保温水箱工程
BDF地埋水箱工程
玻璃钢水箱工程
消防水箱
不锈钢组合水箱
不锈钢拼接水箱
组合式水箱
生活水箱
大型养殖厂
保温水箱
消防水箱
不锈钢水箱
BDF地埋水箱
BDF地埋水箱
化粪池和供水设备系列
解决方案
消防水箱设计方案
贵州遵义某小学水箱设计布局图
贵州遵义某大学水箱设计布局图
贵州黔东南某酒店水箱设计布局图
贵州黔东南某超市水箱设计方案图
贵州遵义某中学水箱设计平形基础图
不锈钢水箱设计案例图纸
养殖场水箱设计方案
学校水箱设计方案
广西钦州某企业单位水箱设计图纸-布局图
广西钦州某幼儿园水箱设计图纸-布局图
广西钦州某中小学水箱设计图纸-条形基础图
生活水箱设计方案
保温水箱设计方案
贵州贵阳某医院水箱设计布局图
成功案例
消防水箱案例
广州黄埔水箱案例
养殖厂水箱案例
湖北宜昌300吨工地
贵州六盘水箱案例
生活水箱案例
肇庆广宁县20个生活水箱~完工了
100吨不锈钢水箱,深圳工地安装完成|冠耐斯水箱
2*18吨不锈钢水箱,广州工地安装完成|冠耐斯水箱
900吨不锈钢水箱,崇化工地施工中|冠耐斯水箱
学校水箱案例
汕尾宝山106吨冷水箱
关于我们
关于冠耐斯
加入我们
新闻动态
联系我们
资质荣誉
广东省涉及饮用水卫生安全产品卫生许可批件
营业执照
您当前的位置:
首页
>
解决方案
>
消防水箱设计方案
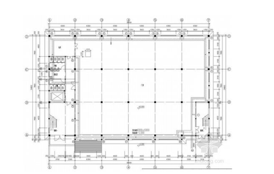
贵州黔东南某超市水箱设计方案图
来源:
http://www.gns88.cn/fangans_14/21.html
日期:
2021-08-04
点击:
146
上一篇:
贵州遵义某中学水箱设计平形基础图
下一篇:
贵州黔东南某酒店水箱设计布局图
7*24小时免费咨询
7*24h free consultation
急速免费报价
Quick free quote
全国上门安装
Site installation
源头厂家直销
Factory direct sales
不锈钢水箱
不锈钢水箱
消防水箱
BDF地埋水箱
化粪池和供水设备系列
解决方案
消防水箱设计方案
养殖场水箱设计方案
学校水箱设计方案
生活水箱设计方案
保温水箱设计方案
成功案例
消防水箱案例
养殖厂水箱案例
生活水箱案例
学校水箱案例
关于我们
关于冠耐斯
加入我们
新闻动态
联系我们
资质荣誉
全国免费咨询热线
18028225062
24小时微信客服
Copyright © 广东冠耐斯给排水设备有限公司 版权所有 网站备案号:
粤ICP备2021109309号
在线咨询
电话咨询
18028225062
QQ咨询